
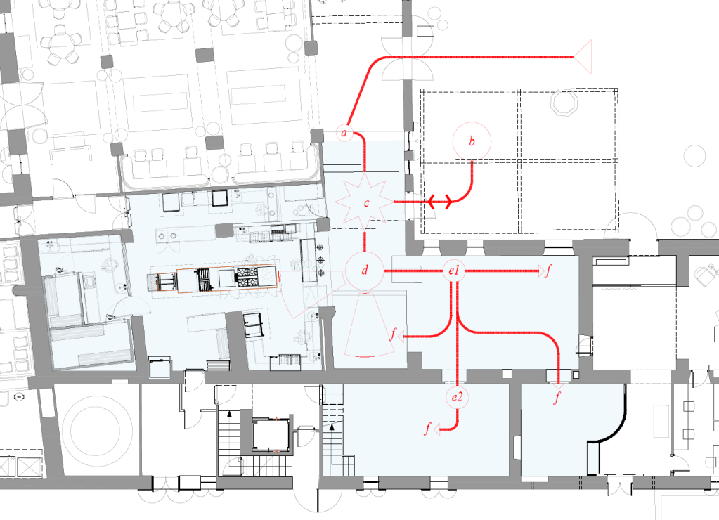
Para empezar a pensar cómo tenía que ser el diseño de el restaurante de Andreu Genestra en el hotel Zoëtry, lo primero que analizamos fue cuál sería el recorrido del cliente desde que llega al lugar hasta que se sienta en la mesa. Este recorrido es entendido como narración, como un seguido de puntos donde el cliente tiene que pasar sí o sí, y en cada uno de estos, es susceptible que pase alguna cosa especial. Proyectamos por lo tanto con sensaciones, no sólo con objetos. Propusimos un diseño experiencial.

Colocado en horizontal, es mucho más fácil de entender esta sucesión de diferentes experiencias. A la recepción (A) le sigue una preparación (B) y luego una Sorpresa (C). Después vendrá una explicación (D) y finalmente se llega a la experiencia culinaria propiamente dicha (F).
Además, si colocamos encima el diagrama de transformación de los alimentos en el restaurante, vemos que podemos provocar que haya interacciones entre estos dos recorridos. Proponemos entrar por un almacén y ver la cocina. Esto provoca en el cliente una sensación de cercanía y de honestidad. No hay nada que esconder.

Para la recepción desarrollamos un dispositivo inmersivo con un doble objetivo; que sirva para hilvanar una narrativa del restaurante, pero también que provoque una sorpresa al cliente. Se busca un ”wow” útil. Esto lo conseguimos con un artefacto en forma de estantería alta hasta el techo, y que por su forma hace que cuando se entra en ella se tenga la sensación de estar en una estancia independiente. Se han barajaron varias formas, pero al final se propuso con una forma que se percibe como cilíndrica desde el interior, y prismática desde el exterior. El hueco interior que se acelera por el hecho de colocar un espejo en el techo. Las reflexiones nos dan la sensación de estar en un espacio mucho más alto de lo que realmente es.



Además, estas cortinas permiten dejar huecos que dejen entrever lo que hay dentro. Desde el interior del restaurante Gastro se puede ver el interior del dispositivo, cosa que no debería ser así desde la entrada del restaurante del hotel. Desde allí se percibirá como un cubo suspendido, efecto que se exagerará aún más por las corinas que se quedan colgando a media altura.


Cada una de las diferentes salas donde se da la propia experiencia gastronómica tiene algún tipo de referencia a algún producto. Esta referencia es muy sutil ya que en este punto el protagonismo ya se cede a la comida, pero suficiente como para apoyarla en la oferta gastronómica propuesta por el chef. Así una de las salas hace referencia al mundo del aceite, materializándose en una celosía con formas de los “espartins”, pequeños discos de asparto que se colocan entre capa y capa de aceitunas en la prensa.

Otra sala hace referencia al mundo del vino. En esta referenciamos a su color y a la forma de las botellas, colocando baldosas semicilíndricas en un espacio privado que de alguna manera quiere hacer recordar el interior de una bota de vino.

Emplazamiento Hotel Zoëtry, cami de Sa Torre s/n Llucmajor (Mallorca)
Fecha Enero-Mayo 2023
Proyecto Narcís Font i Juan col: Federico Ortiz, Genis Solé Vilalta, Fran Rodríguez
Fotografías Narcís Font
